Teplovodní krbová vložka s vysokým výkonem do vody, s možností izolace
Detailní popis produktu
Série vložek s teplovodním výměníkem Navi je navržena pro intenzivní topení. Technologie výměníku, která se v nich používá, využívá teplo, které nám krb dává, ohřívání vody a přesměrování na použití ústředního topení. Vzhledem k sezónnosti používání krbu fungují vodní vložky Navi s jinými zdroji tepla, jako jsou kotle, sporáky, solární systémy, tepelná čerpadla atd. Proto série Navi s vodním výměníkem vytváří ekonomické a ekologické přínosy s vysokou účinností. Konstrukce vložky na základě vodní jednotky po stranách a v horní části vložky se projevuje vysokým výkonem výměníku.
- revizní otvor teplovodního výměníku pro pohodlné čistění
- dochlazovací smyčka
- centrální přívod vzduchu – speciální box umožní připojení hadice přívodního vzduchu k vložce s možností napojení ze strany
- MultiFlow – patentované řešení dodávání vzduchu pro spalování
- propracovaný systém oplachu skla
- BlackLine – sklo s černým potiskem
- topeniště z masivního akumulačního materiálu Ceramiton, vyztužené speciálními ocelovými drátky
- studená rukojeť Cool&Touch – z nerezové oceli nejvyšší kvality, speciální perforace rukojeti umožňuje její přirozené ochlazování
- splňuje normy BImSchV Stufe2 a předpoklady programu Ekodesign
- vyrovnávací patky – rozsah nastavení od 0 do 100 mm
DEFRO HOME Navi XSM s izolací
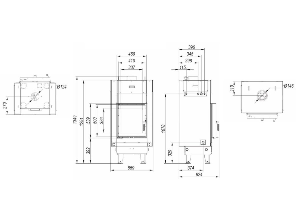
Jmenovitý výkon:8,7 kW
Rozsah výkonu:3,4 - 10,3 kW
Výkon vodního oběhu:6,8 kW
Max. pracovní tlak:2,0 bar
Třída energetické účinnosti:A+
Účinnost:82,4 %
Průměr kouřovodu:146 mm
Emise CO:0,032 %
Teplota spalin:238 °C
Komínový tah:12±2 Pa
Max. délka polen:350 mm
Průměr přívodu vzduchu:124mm
Hmotnost:~230 kg
Doplňkové parametry
| Kategorie: | Krbové vložky DEFRO, výměník, 14 - 18 kW, rovné sklo |
|---|---|
| Záruka: | 5 let |
Buďte první, kdo napíše příspěvek k této položce.
Přidat komentář




